









Rustroff (57)
- Maître d’ouvrage : Privé
- Surface : 290 m²
- Réhabilitation
- Projet livré
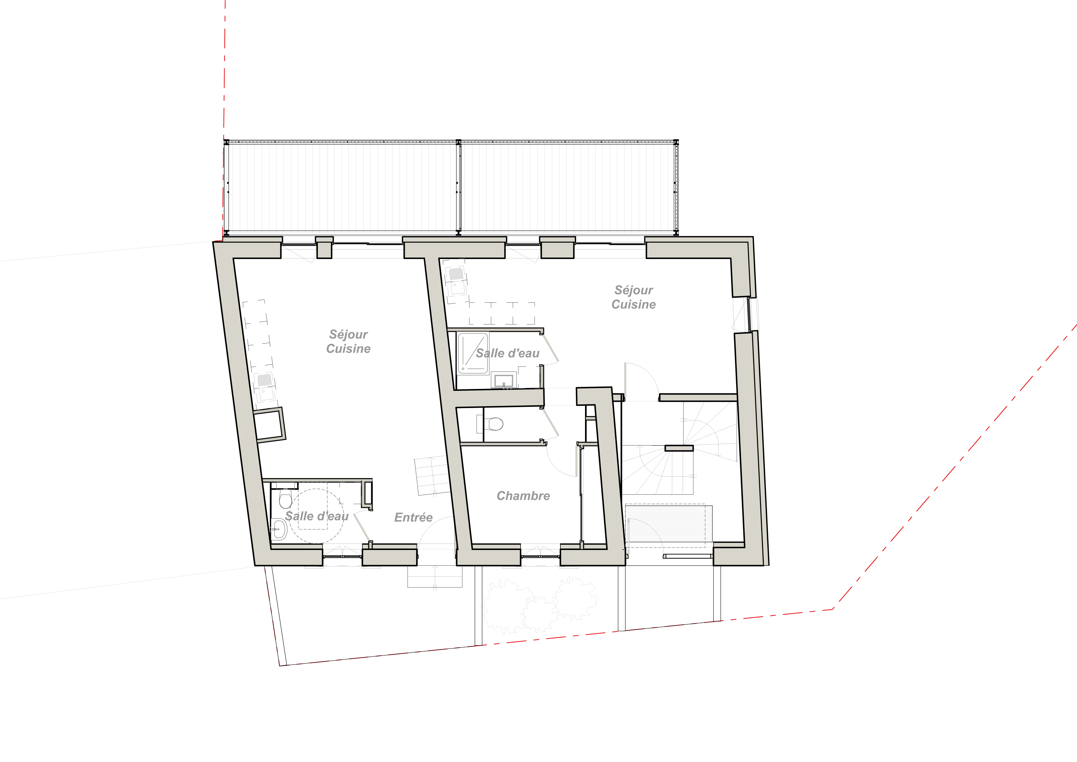
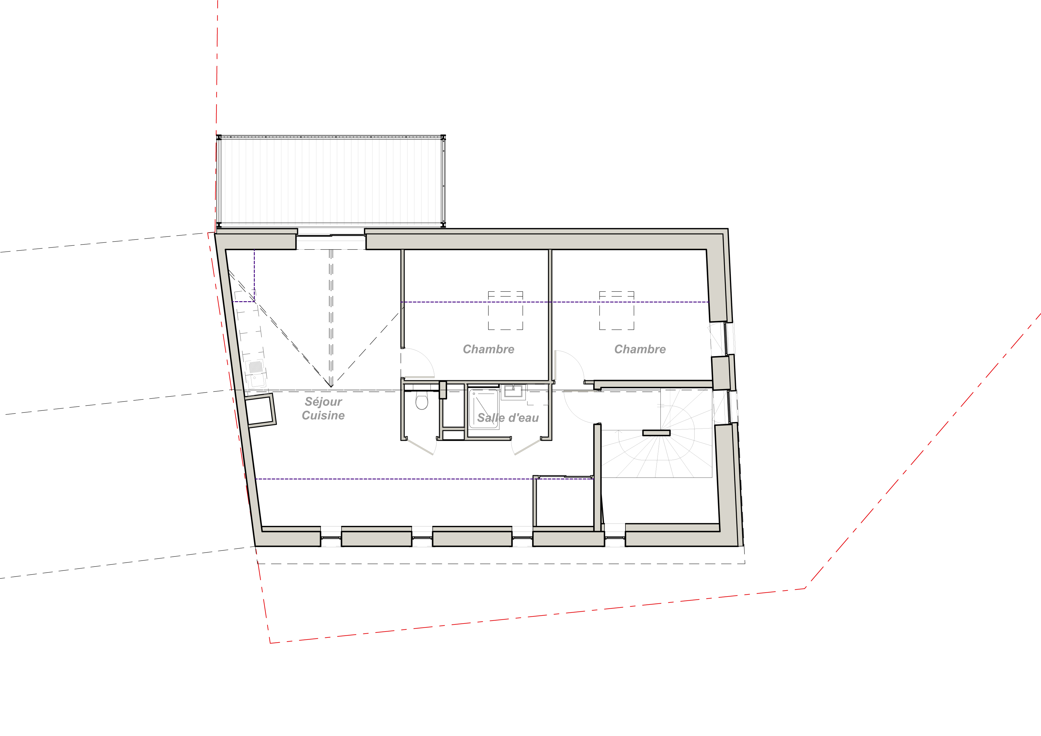
Cette maison de village, ancienne propriété de la famille du maître d’ouvrage, fait l’objet d’une transformation totale afin d’accueillir 4 logements. Le bâtiment existant a subi au fil des années des transformations et des altérations que le projet s’attache à déconstruire pour retrouver le coeur du bâtiment originel tout en profitant de son meilleur atout : une vue imprenable sur la vallée de la Moselle et les coteaux de Schengen.
Ainsi, les extensions récentes réalisées sur la partie arrière du bâtiment sont détruites pour laisser place à de larges terrasses construites en ossature légère. La façade arrière sera plus aérée tandis que la façade sur rue, classée comme remarquable, sera rénovée intégralement avec une touche légèrement contemporaine dans les couleurs et les matériaux.